福山・関西・関東方面・福岡・佐賀・長崎・熊本・大分・宮崎・鹿児島の食品輸送・配送はお任せください。
日用雑貨等や重機運搬、中古トラックの販売もしております。

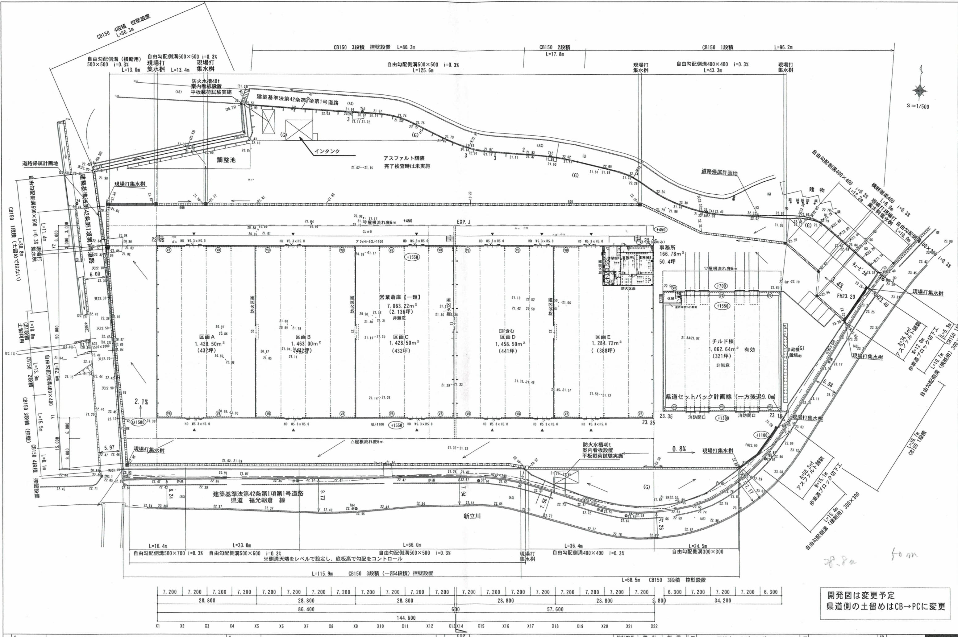
貸倉庫・事務所テナント募集

貸倉庫・事務所テナント募集してます

新規倉庫増改中。5月より営業倉庫認定を申請中。

詳細
住所 福岡県朝倉市杷木星丸字12丁目628番地2(旧住所:福岡県朝倉郡杷木町大字星丸字12丁目628番地2)
交通 杷木インター出口より車で5分
問い合わせ先 0946-24-3612(担当:松本まで)

設備

倉庫300坪3件100坪1件あり事務所改築完了

駐車場、台所、風呂、休憩所14坪ほど(共有)

トイレは男女別々

倉庫は流れ作業にはもってこいの物件です

休憩所は20人はゆっくりくつろげるスペースです

事務所も広く、炊事場あります

リフト有り(新車)

家賃は相談可能です

貸倉庫・事務所テナント募集してます(令和4年2~3月完成予定)

詳細
交通 朝倉インターより車で5分
問い合わせ先 0946-24-3612(担当:松本まで)

倉庫図面

図面をクリックすると拡大します。

  page top